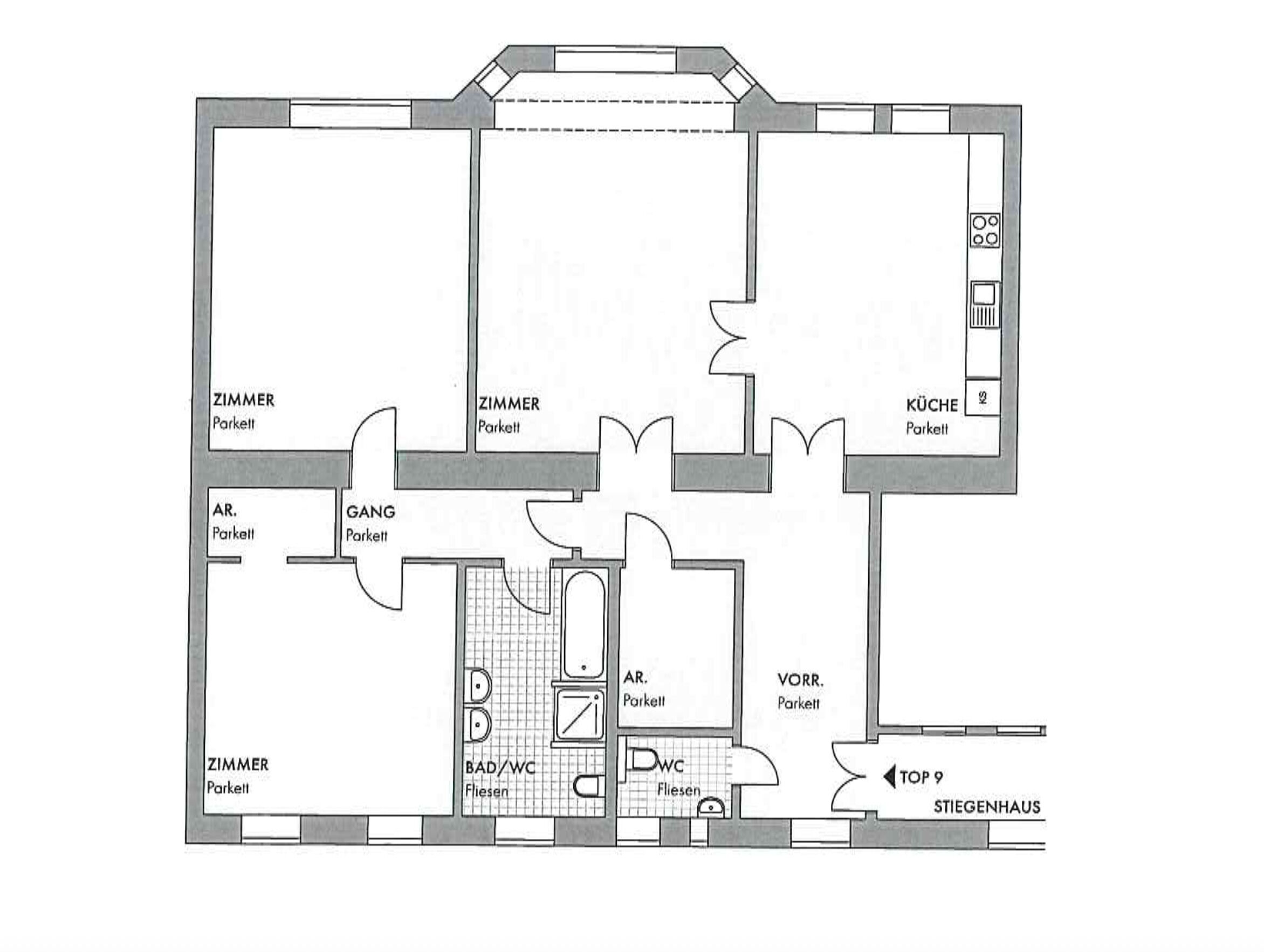
Zurück Zurück zu den Ergebnissen Bilder Pläne 1/20 1030 Wien, Untere Weißgerberstraße Wunderschöner Stil-Altbau mit Erker! 3 Zimmer plus separate Küche nächst Kunst Haus Wohnfläche 138 m² Zimmer 3,5 Bäder 1 Stil Altbau Gesamtmiete* € 2.435,86 Objekt-ID: 25518 Eckdaten Etage 1. OG Wohnfläche 138 m² Zimmer 3,5 Bäder 1 WC 2 Baujahr 1915 Stil Altbau Zustand Gepflegt Preis Gesamtmiete* € 2.435,86 Miete € 1.932,– Betriebskosten € 245,06 Liftkosten € 37,35 Umsatzsteuer € 221,45 MonatlicheGesamtbelastung € 2.435,86 * Miete + Nebenkosten (inkl. USt.), ohne Heizkosten Kaution 7.307,58 € Nebenkostenübersicht (PDF) Ausstattung WG geeignet Dusche Badewanne Einbauküche Fliesen Parkett Etagenheizung Gas Personenaufzug Abstellraum Gäste-WC Objektbeschreibung Die 1915 erbaute Liegenschaft in der Unteren Weißgerberstraße wurde in den letzten Jahren liebevoll saniert und verbindet gekonnt traditionelle Architektur mit modernem Wohnkomfort. Ein Personenlift ist vorhanden. Fahrräder können im Innenhof abgestellt werden. Die ruhige Gasse parallel zur Hundertwasser Promenade und dem Donaukanal sowie zwischen Prater und Wien Mitte ist eine ideale Citylage kombiniert mit viel Grünflächen rundherum. Grundriss Der 3-Zimmer-Stilaltbau plus extra Küchenbereich mit ca. 138 qm befindet sich im 1. Liftstock und ist südwestlich zur Straße hin und nordöstlich Richtung Innenhof ausgerichtet. Über den Vorraum mit Fenster sind alle Räume zentral begehbar: Wohnzimmer mit charmantem Erker Koch-/Essbereich mit Einbauküche straßenseitiges Schlafzimmer hofseitiges Schlafzimmer mit Schrankraum Badezimmer mit Fenster (ausgestattet mit Dusche, Wanne, WC, zwei Waschbecken, Waschmaschinenanschluss) Gäste-WC Abstellraum Ausstattung Holzkastenfenster, teilweise elektrische Rollos, Flügeltüren, Fischgrät-Parkettböden, Gasetagenheizung Konditionen Monatliche Gesamtmiete: EUR 2.435,86 (inkl. Betriebskosten, Liftkosten und 10 % USt) Energiekosten: Strom und Gas sind im Mietpreis nicht inkludiert und somit separat zu entrichten. Kaution: 3 BMM (EUR 7.307,58) Mietbeginn: ab sofort möglich Mietverhältnis: unbefristet Dieses Objekt wird Ihnen unverbindlich und freibleibend zur Miete angeboten. Oben angeführte Angaben basieren auf Informationen und Unterlagen der Eigentümerin und sind unsererseits ohne Gewähr. Wir möchten noch darauf hinweisen, dass wir in einem wirtschaftlichen Naheverhältnis zur Vermieterin stehen. Wir weisen darauf hin, dass zwischen dem Vermittler und dem zu vermittelnden Dritten ein familiäres oder wirtschaftliches Naheverhältnis besteht. Der Immobilienmakler erklärt, dass er – entgegen dem in der Immobilienwirtschaft üblichen Geschäftsgebrauch des Doppelmaklers – einseitig nur für den Vermieter tätig ist. Mehr erfahren Downloads Exposé Lage Der Standort vereint städtische Zentrumsnähe mit guter Verkehrsanbindung und einem wohnfreundlichen Umfeld. Das Weißgerber-Viertel ist geprägt von stilvollen Altbauten, kleinen Geschäften und vielfältiger Infrastruktur – eine ruhige Lage innerhalb der Stadt, aber dennoch mittendrin. Nur wenige Schritte entfernt befindet sich das Kunst Haus Wien - Hundertwasser Museum. Grünflächen und Parks: Auf der gegenüberliegenden Seite des Donaukanals liegt der Prater mit der Zirkuswiese und der Praterwiese und natürlich auch dem Vergnügungspark. Auch der Stadtpark und das Schloss Belvedere sind nicht weit entfernt. Shopping: Die Landstraßer Hauptstraße und "The Mall" in Wien Mitte bieten zahlreiche Einkaufsmöglichkeiten und Shoppingerlebnisse. Folgende öffentlichen Verkehrsmittel befinden sich in der näheren Umgebung: Straßenbahn 1 (Haltestellen Radetzkyplatz oder Hetzgasse) Straßenbahn 0 (Haltestelle Radetzkyplatz) Buslinien 4A und N29 (Haltestelle Löwengasse) Bahnhof Wien Mitte mit U3 und U4 (in ca. 10 Minuten zu Fuß erreichbar) Ansprechpartner Sandra Weichesmiller Immobilienvertrieb Immobilie anfragen +43 676 7093336 +43 1 3157280 vCard Energieausweis D HWB: 129,70 kWh/m²a D fGEE: 2,20 In Google Maps anzeigen Anfrage Wir freuen uns über Ihre Anfrage zu "Wunderschöner Stil-Altbau mit Erker! 3 Zimmer plus separate Küche nächst Kunst Haus". Anrede Anrede* "Herr" "Frau" Neutral Keine Angabe Titel Titel nachgest. Vorname Nachname Rückrufservice Telefonnr. Zeitraum Zeitraum Do 11.12., 08:30 – 10:30 Do 11.12., 10:30 – 12:30 Do 11.12., 12:30 – 14:30 Do 11.12., 14:30 – 16:30 Do 11.12., 16:30 – 18:30 E-Mail Nachricht Anmeldung zum WINEGG-Newsletter Ich bin damit einverstanden, dass meine Daten zum Zwecke der Bearbeitung der Anfrage gespeichert und weiterverarbeitet werden. Weitere Informationen finden Sie in unserer Datenschutzerklärung. * Bitte geben Sie in dieses Feld 999 ein Senden