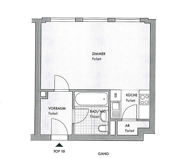
Zurück Zurück zu den Ergebnissen Bilder Pläne 1/11 1180 Wien, Antonigasse Gemütliche, hübsche 1-Zimmer Wohnung in der Antonigasse Nähe AKH inkl. Heizkosten! Wohnfläche 36,39 m² Zimmer 1 Bäder 1 Verfügbar ab sofort Befristung 5 Jahre Stil Neubau Gesamtmiete* € 767,24 Objekt-ID: 27192 Eckdaten Etage 1. OG Wohnfläche 36,39 m² Zimmer 1 Bäder 1 WC 1 Garagenplätze 1 Baujahr 1997 Stil Neubau Preis Gesamtmiete* € 767,24 Miete € 549,32 Betriebskosten € 125,51 Heizkosten € 52,30 Liftkosten € 22,66 Umsatzsteuer € 80,21 MonatlicheGesamtbelastung € 830,– * Miete + Nebenkosten (inkl. USt.), ohne Heizkosten Kaution 2.490,00 € Nebenkostenübersicht (PDF) Ausstattung Badewanne Wohnküche / offene Küche Zentralheizung Personenaufzug Parkplatz (Duplex Garage) Parkplatz Garage Tiefgarage Objektbeschreibung Die Liegenschaft befindet sich in der Antonigasse/Ecke Martinstraße, nur wenige Gehminuten von der Kreuzgasse und vom Währender Gürtel/AKH entfernt. Die Wohnung ist eine gut aufgeteilte Single-Wohnung. Auf ca. 36 m2 Wohnfläche finden sich: ein großzügiger Vorraum ein großer Wohnraum mit Einbauküche ein Badezimmer mit Wanne, WC und Waschmaschinenanschluss sowie ein Abstellraum Weiters gibt es für die Wohnung eine öffentlich zugängliche Dachterrasse, sowie auch einen trockenen Einlagerungsraum. Es stehen mehrere KFZ-Stapelparker in der hauseigenen Tiefgarage zur Miete zur Verfügung. Die Einfahrt befindet sich in der Antonigasse. Maximal zulässige Maße und Gewichte entnehmen Sie bitte der beigefügten Tabelle. Gesamtmiete Garage: EUR 80,- brutto/Monat Gesamtmiete Wohnung: EUR 830,- (inkl. BK und Heizkosten) Kaution Garage: 3 BMM (EUR 320,-) Kaution Wohnung: 3 BMM (EUR 2.490,-) Provision Garage: 3 BMM (EUR 320,- brutto) Dieses Objekt wird Ihnen unverbindlich und freibleibend zur Miete angeboten. Oben angeführte Angaben basieren auf Informationen und Unterlagen der Eigentümerin und sind unsererseits ohne Gewähr. Als Vermittlungshonorar gelten die allgemeinen Geschäftsbedingungen und die Verordnung für Immobilienmakler des BM für Handel, Gewerbe und Industrie, BGBL. 297/1996. Wir möchten noch darauf hinweisen, dass wir in einem wirtschaftlichen Naheverhältnis zur Verkäuferin stehen. Der Immobilienmakler erklärt, dass er – entgegen dem in der Immobilienwirtschaft üblichen Geschäftsgebrauch des Doppelmaklers – einseitig nur für den Vermieter tätig ist. Mehr erfahren Downloads Exposé Lage Diese Wohnadresse gewährleistet eine ausgezeichnete Infrastruktur! Keine 10 Gehminuten entfernt befindet sich eine beliebte Parkanlage, der Schubertpark, mit herrlichem Altbaumbestand, einem historischen Denkmalhain sowie zwei Ballspielplätzen und einer Hundezone. Die Währinger Straße ist auch ca. 10 Gehminuten entfernt, bietet alle Geschäfte des täglichen Bedarfs und lädt zu einem gemütlichen Shoppingbummel ein. Am pulsierenden Kutschkermarkt finden Sie zahlreichen Marktstände und vielseitige, gastronomische Angebote. In nur wenigen Minuten erreichen Sie die Straßenbahnlinien 42 und 43 mit direkter Verbindung in die Innenstadt (Schottentor) sowie die U6 Michelbeuern/AKH, als auch die Autobuslinie 40A. Mit dem Auto gelangen Sie in Kürze in die Heurigenregionen Neustift am Walde und Grinzing. Ansprechpartner Patrick Winkler Immobilienvertrieb Immobilie anfragen +43 660 8461085 +43 1 3157280 vCard Energieausweis C HWB: 44,70 kWh/m²a C fGEE: 1,06 In Google Maps anzeigen Anfrage Wir freuen uns über Ihre Anfrage zu "Gemütliche, hübsche 1-Zimmer Wohnung in der Antonigasse Nähe AKH inkl. Heizkosten!". Anrede Anrede* "Herr" "Frau" Neutral Keine Angabe Titel Titel nachgest. Vorname Nachname Rückrufservice Telefonnr. Zeitraum Zeitraum Mo 16.2., 08:30 – 10:30 Mo 16.2., 10:30 – 12:30 Mo 16.2., 12:30 – 14:30 Mo 16.2., 14:30 – 16:30 Mo 16.2., 16:30 – 18:30 E-Mail Nachricht Anmeldung zum WINEGG-Newsletter Ich bin damit einverstanden, dass meine Daten zum Zwecke der Bearbeitung der Anfrage gespeichert und weiterverarbeitet werden. Weitere Informationen finden Sie in unserer Datenschutzerklärung. * Bitte geben Sie in dieses Feld 999 ein Senden Entdecken Sie unser vielfältiges Immobilienportfolio 1180 Wien, Antonigasse Urban gelegene 1-Zimmer Wohnung in der Antonigasse Nähe AKH inkl. Heizkosten! 1 Zimmer 36,04 m² € 820,–