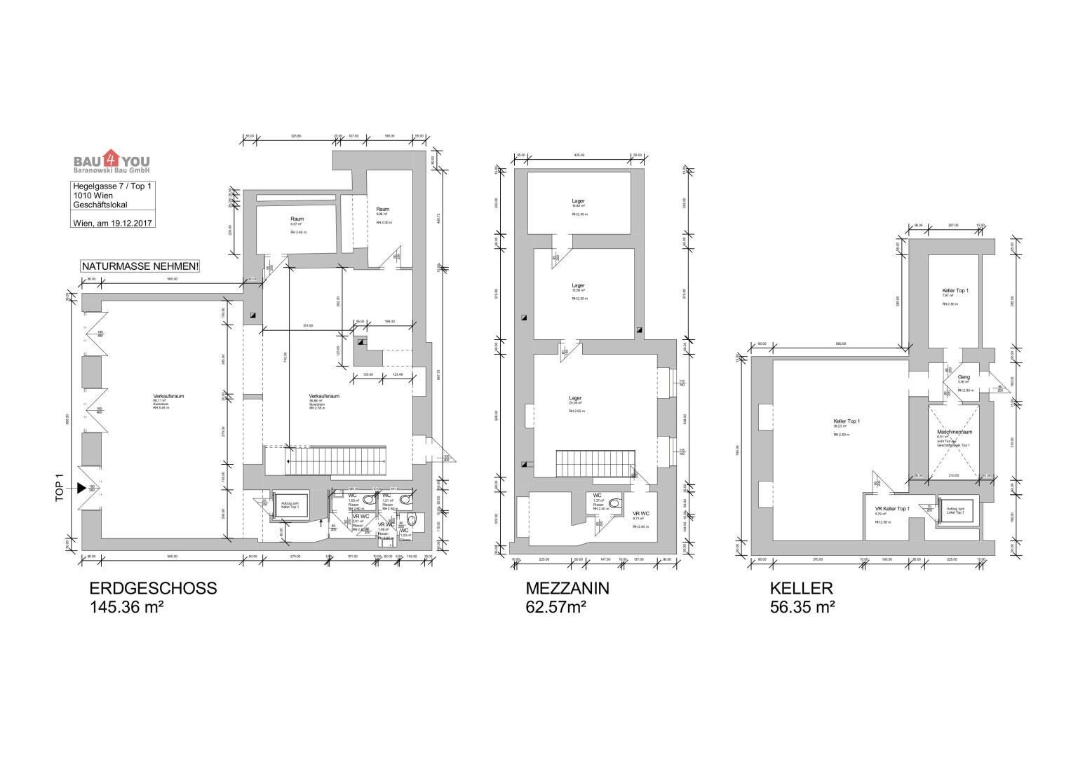
Zurück Zurück zu den Ergebnissen Bilder Pläne 1/20 1010 Wien, Johannesgasse Prestigeträchtige Lage nächst Parkring und Stadtpark! Erdgeschoß-Lokal mit großer Auslagefläche und über 5 m Raumhöhe! Bäder 1 Verfügbar ab ab sofort Stil Altbau Gesamtmiete* € 9.351,74 Nutzungsart Gewerbeobjekt Objekt-ID: 27029 Eckdaten Etage 0.5. OG Nutzfläche 265 m² Kellerfläche 56,35 m² Bäder 1 WC 3 Baujahr 1877 Stil Altbau Zustand Gepflegt Preis Gesamtmiete* € 9.351,74 Miete € 7.135,56 Betriebskosten € 657,56 Umsatzsteuer € 1.558,62 MonatlicheGesamtbelastung € 9.351,74 * Miete + Nebenkosten (inkl. USt.), ohne Heizkosten Kaution 3 bis 6 BMM Nebenkostenübersicht (PDF) Ausstattung Dusche Fliesen Fernwärme Personenaufzug Abstellraum Gäste-WC Objektbeschreibung Die Johannesgasse – in bester Innenstadt-Lage inmitten des Kärntner Viertels – befindet sich nächst dem Parkring, dem Stadtpark, dem Palais Coburg, dem Musicaltheater Ronacher sowie vielen weiteren traditionsreichen Gastronomiebetrieben, Museen und Konzerthäusern. Genau hier gelangt ein Geschäftslokal zur Vermietung, das für viele Branchen von Interesse sein kann! Der Zugang zu dem Objekt kann direkt über die Johannesgasse sowie über den Haupteingang der Liegenschaft in der Hegelgasse erfolgen. Das Objekt verfügt auf 3 Ebenen über eine Gesamtnutzfläche von rund 265 qm. Nachfolgend finden Sie eine Beschreibung der jeweiligen Bereiche. Erdgeschoß Das Erdgeschoß bietet auf insgesamt rund 145 qm einen Verkaufsraum mit über 5 m Raumhöhe, zwei Nebenräume, die Sanitäranlagen (Damen und Herren getrennt) sowie den Aufgang zum Mezzanin und Lifteinstieg zum Keller. Großzügige, bodentiefe Glasfenster bzw. Glastüren ermöglichen optimalen Sichtkontakt in das Lokal und bieten eine hervorragende Auslagenfläche. Mezzanin Über eine Treppe gelangt man in das Mezzanin mit ca. 62,5 qm. Hier befinden sich zwei Lagerräume und ein Raum mit Fenster, der als Büro genutzt werden könnte, sowie ein Umkleideraum für Mitarbeiter mit Dusche und WC. Keller Zu dem Lokal gehört ein Lagerraum im Keller mit ca. 56 qm, welcher mit dem Lift direkt vom Verkaufsraum im Erdgeschoß aus zu erreichen ist. Fazit Dank der zentralen Lage mit perfekter öffentlicher Anbindung, des prestigeträchtigen Adresscharakters und der großer Auslagefläche, eignet sich das Geschäftslokal ideal für hochwertige Einzelhandelskonzepte, Showrooms, Dienstleistungsbetriebe oder repräsentative Geschäftsflächen, die Wert auf Sichtbarkeit, Erreichbarkeit und ein exklusives Umfeld legen. Konditionen Monatliche Gesamtmiete: EUR 9.351,74 (inkl. Betriebskosten und 20 % USt) Monatliches Akonto für Heizung: EUR 442,62 + 20 % USt Strom ist vom Mieter separat anzumelden und zu bezahlen. Kaution: 3 bis 6 BMM (je nach Bonität) Provision: EUR 23.379,36 + 20 % USt Die Vergebührung des Mietvertrages an das Finanzamt ist vom Mieter zu entrichten. Mietverhältnis: unbefristet Mietbeginn: ab sofort Dieses Objekt wird Ihnen unverbindlich und freibleibend zur Miete angeboten. Oben angeführte Angaben basieren auf Informationen und Unterlagen der Eigentümerin und sind unsererseits ohne Gewähr. Als Vermittlungshonorar gelten die allgemeinen Geschäftsbedingungen und die Verordnung für Immobilienmakler des BM für Handel, Gewerbe und Industrie, BGBL. 297/1996. Für den Fall, dass es diesbezüglich zu einem entsprechenden Rechtsgeschäft kommt, verrechnen wir Ihnen eine Vermittlungsprovision von 3 Bruttomonatsmieten zuzüglich der gesetzlichen Mehrwertsteuer. Wie möchten darauf hinweisen, dass wir in einem wirtschaftlichen Naheverhältnis zur Vermieterin stehen. Wir weisen darauf hin, dass zwischen dem Vermittler und dem zu vermittelnden Dritten ein familiäres oder wirtschaftliches Naheverhältnis besteht. Der Vermittler ist als Doppelmakler tätig. Mehr erfahren Downloads Exposé Lage Die Johannesgasse ist eine frequentierte Querstraße mit repräsentativem Umfeld, geprägt von hochwertigen Büroflächen, etablierten Dienstleistungsunternehmen, Hotels sowie gehobener Gastronomie. Durch die Nähe zu bedeutenden Kultur- und Wirtschaftsstandorten sowie internationalen Unternehmen profitiert der Standort von einer kaufkräftigen, internationalen Zielgruppe aus Geschäftsleuten, Touristen und Anrainern. In unmittelbarer Umgebung befinden sich die Straßenbahnstationen 2 und D sowie die U-Bahn-Linie 3 (Station Stadtpark), die eine perfekte Anbindung an den Haupt- und Westbahnhof sowie zum Flughafenshuttle-Expresszug „City Airport Train“ bieten. Ansprechpartner Sandra Weichesmiller Immobilienvertrieb Immobilie anfragen +43 676 7093336 +43 1 3157280 vCard Energieausweis C HWB: 78,00 kWh/m²a C fGEE: 1,01 In Google Maps anzeigen Anfrage Wir freuen uns über Ihre Anfrage zu "Prestigeträchtige Lage nächst Parkring und Stadtpark! Erdgeschoß-Lokal mit großer Auslagefläche und über 5 m Raumhöhe!". Anrede Anrede* "Herr" "Frau" Neutral Keine Angabe Titel Titel nachgest. Vorname Nachname Rückrufservice Telefonnr. Zeitraum Zeitraum Do 28.5., 13:00 – 15:00 Do 28.5., 15:00 – 17:00 Fr 29.5., 08:30 – 10:30 Fr 29.5., 10:30 – 12:30 Fr 29.5., 12:30 – 14:30 E-Mail Nachricht Anmeldung zum WINEGG-Newsletter Ich bin damit einverstanden, dass meine Daten zum Zwecke der Bearbeitung der Anfrage gespeichert und weiterverarbeitet werden. Weitere Informationen finden Sie in unserer Datenschutzerklärung. * Bitte geben Sie in dieses Feld 999 ein Senden