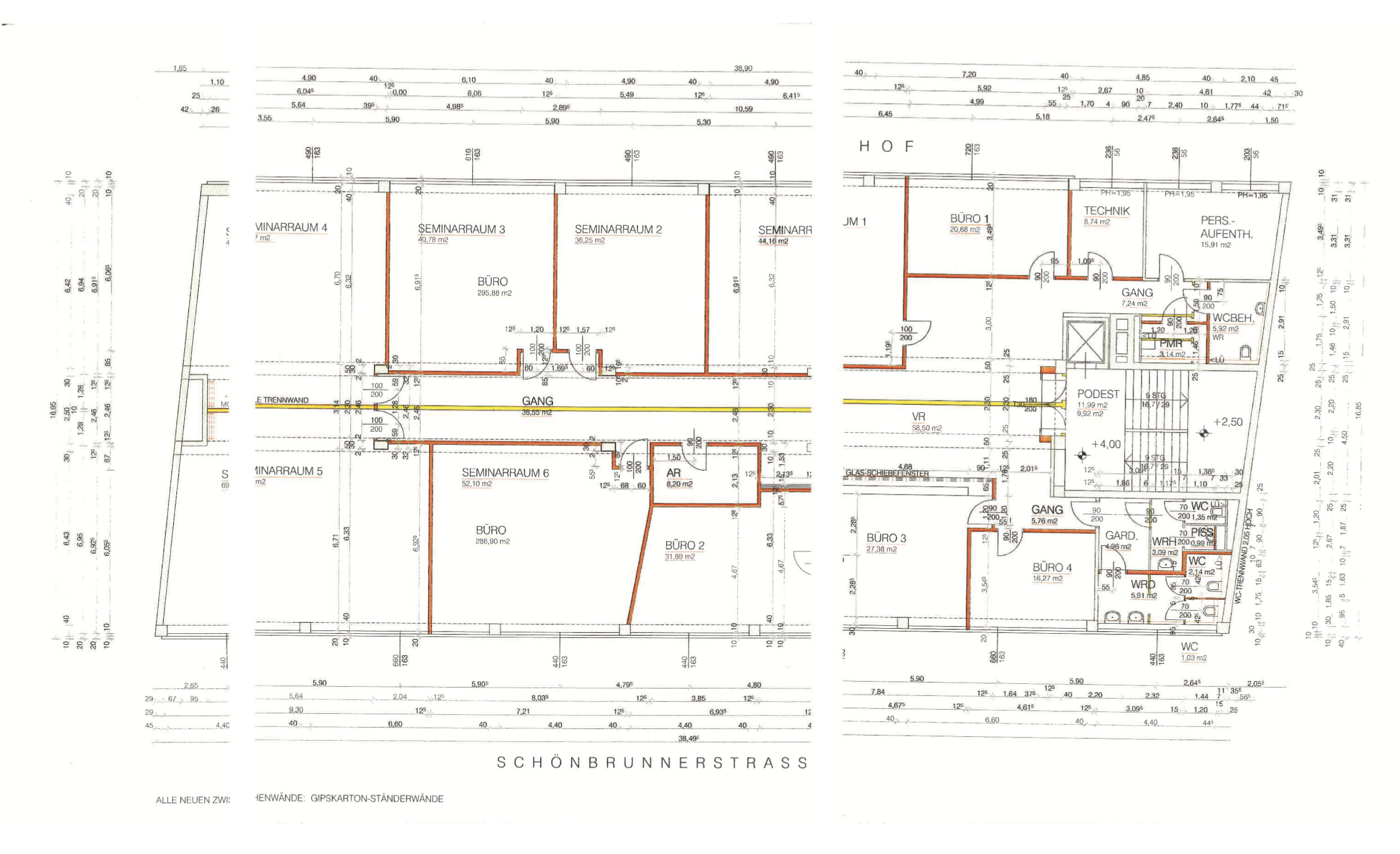
Zurück Zurück zu den Ergebnissen Bilder Pläne 1/17 1120 Wien, Schönbrunner Straße Gesamte 1. Etage in Bürogebäude bei U4 und U6! Vielfältige Möglichkeiten - Seminare, Kanzlei, Ordination, Studio uvm! Bürofläche 579,84 m² Zimmer 10 Verfügbar ab sofort Stil Neubau Gesamtmiete* € 8.145,68 Nutzungsart Gewerbeobjekt Objekt-ID: 27311 Eckdaten Etage 1. OG Nutzfläche 579,84 m² Bürofläche 579,84 m² Zimmer 10 WC 4 Stil Neubau Preis Gesamtmiete* € 8.145,68 Miete € 5.798,40 Betriebskosten € 989,67 Umsatzsteuer € 1.357,61 MonatlicheGesamtbelastung € 8.145,68 * Miete + Nebenkosten (inkl. USt.), ohne Heizkosten Kaution 3 bis 6 BMM Nebenkostenübersicht (PDF) Ausstattung Räume veränderbar Pissoir Einbauküche Zentralheizung Personenaufzug Rollstuhlgerecht Abstellraum Gas Objektbeschreibung Das Bürogebäude befindet sich in der Schönbrunner Straße, nächst U4 und U6 Längengfeldgasse, gegenüber dem Bruno-Pittermann-Platz. Ein Personenlift ist vorhanden sowie ein Treppenlift, um den barrierefreien Zugang zu ermöglichen. Bisher wurde das Objekt als Seminarräumlichkeiten genutzt, die Möglichkeiten sind vielfältig: Kanzlei, Ordination, Therapie, Fitness, Kosmetik, Wellness, uvm. Grundriss Die Bürofläche mit ca. 580 qm bietet einen optimalen Grundriss, bei dem alle Räume zentral über den Gang begehbar sind. Selbstverständlich kann das Layout auch verändert werden, um das Konzept ganz nach Ihren Wünschen zu gestalten. Die Räume sind straßen- und hofseitig orientiert. Die Raumhöhe beträgt ca. 2,60 m. Derzeit gliedert sich die Aufteilung wie folgt: der Empfangsbereich das Sekretariat 9 Büroräume 4 Abstellräume (Serverraum, Archiv, Reinigungsraum etc.) getrennte Toiletten für Damen und Herren 1 barrierefreies WC Konditionen Gesamtmiete: EUR 8.120,08 inkl. Betriebskosten und 20 % Umsatzsteuer Das Heizkostenaktonto beträgt monatlich EUR 659,78 netto + 20 % USt. Stromkosten sind nicht inkludiert. Kaution: 3 bis 6 BMM Vergebührung an das Finanzamt: geht zu Lasten des Mieters Provision: 3 BMM Mietbeginn: ab sofort möglich Mietdauer: unbefristet Dieses Objekt wird Ihnen unverbindlich und freibleibend zur Miete angeboten. Oben angeführte Angaben basieren auf Informationen und Unterlagen der Eigentümerin und sind unsererseits ohne Gewähr. Als Vermittlungshonorar gelten die allgemeinen Geschäftsbedingungen und die Verordnung für Immobilienmakler des BM für Handel, Gewerbe und Industrie, BGBL. 297/1996. Für den Fall, dass es diesbezüglich zu einem entsprechenden Rechtsgeschäft kommt, verrechnen wir Ihnen eine Vermittlungsprovision von 3 Bruttomonatsmieten zuzüglich der gesetzlichen Mehrwertsteuer. Wir weisen darauf hin, dass zwischen dem Vermittler und dem zu vermittelnden Dritten ein familiäres oder wirtschaftliches Naheverhältnis besteht. Mehr erfahren Downloads Exposé Lage Die Adresse Schönbrunner Straße 213-215 befindet sich im 12. Wiener Gemeindebezirk (Meidling), einer verkehrs- und infrastrukturell sehr gut angebundenen Innenstadtlage südwestlich des Wiener Stadtzentrums. Die Schönbrunner Straße zählt zu den Hauptachsen des Bezirks und verläuft in Verlängerung der Verbindung zwischen dem Zentrum und dem westlichen Stadtgebiet. Die Umgebung ist geprägt von gemischter Wohn- und Geschäftsstruktur mit zahlreichen Nahversorgern und Dienstleistungsbetrieben entlang der Straße. Die nächstgelegenen öffentlichen Verkehrsmittel sind: - die U4 und U6 Längenfeldgasse - die Busstation12A Längenfeldgasse - Hauptbahnhof Wien Meidling – bedeutender regionaler und überregionaler Bahnhof mit S-Bahn-Anschluss Ansprechpartner Sandra Weichesmiller Immobilienvertrieb Immobilie anfragen +43 676 7093336 +43 1 3157280 vCard Energieausweis D HWB: 95,13 kWh/m²a C fGEE: 1,61 In Google Maps anzeigen Anfrage Wir freuen uns über Ihre Anfrage zu "Gesamte 1. Etage in Bürogebäude bei U4 und U6! Vielfältige Möglichkeiten - Seminare, Kanzlei, Ordination, Studio uvm!". Anrede Anrede* "Herr" "Frau" Neutral Keine Angabe Titel Titel nachgest. Vorname Nachname Rückrufservice Telefonnr. Zeitraum Zeitraum Mo 16.2., 08:30 – 10:30 Mo 16.2., 10:30 – 12:30 Mo 16.2., 12:30 – 14:30 Mo 16.2., 14:30 – 16:30 Mo 16.2., 16:30 – 18:30 E-Mail Nachricht Anmeldung zum WINEGG-Newsletter Ich bin damit einverstanden, dass meine Daten zum Zwecke der Bearbeitung der Anfrage gespeichert und weiterverarbeitet werden. Weitere Informationen finden Sie in unserer Datenschutzerklärung. * Bitte geben Sie in dieses Feld 999 ein Senden Entdecken Sie unser vielfältiges Immobilienportfolio 1200 Wien, Karl-Meißl-Straße Einzigartige Geschäftsfläche im Loft-Stil beim Augarten! Erstbezug nach Revitalisierung 12 Zimmer 527,74 m² € 7.462,08 1200 Wien, Karl-Meißl-Straße Einzigartige Geschäftsfläche im Loft-Stil beim Augarten! Erstbezug nach Revitalisierung 12 Zimmer 527,74 m² € 7.462,08 1200 Wien, Karl-Meißl-Straße Einzigartige Geschäftsfläche im Loft-Stil beim Augarten! Erstbezug nach Revitalisierung 12 Zimmer 527,74 m² € 7.462,08