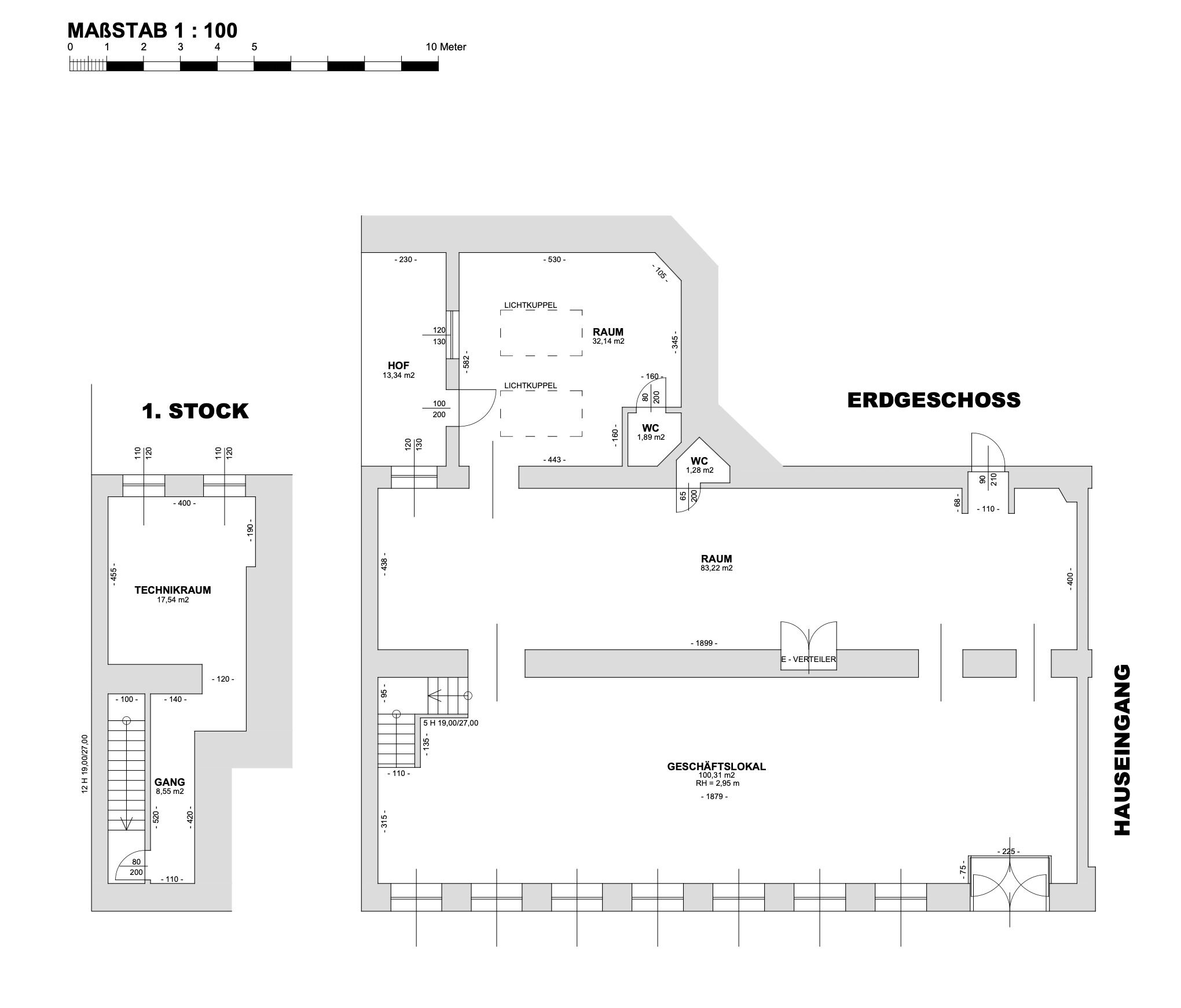
Back Back to the results Images Plans 1/11 1070 Vienna, Westbahnstraße BUSINESS LOCAL/OFFICE in the WESTBAHNSTRASSE in the Schottenfelder Hof! Direct access from the street and large windows! Rooms 3 Style Old building Total rent* € 5,156.67 Type of utilisation Commercial property Object ID: 27999 Key data Floor EG Usable floor area 218.94 m² Rooms 3 WC 2 Year of construction 1908 Style Old building Price Total rent* € 5,156.67 Rent € 3,721.98 Operating costs € 575.24 Value added tax € 859.45 Monthlytotal charge € 5,156.67 * Rent + service charges (incl. VAT), without heating costs Security deposit 3 bis 6 BMM Overview of additional costs (PDF) Equipment Rooms can be changed Floor heating Gas Storeroom Property description The "Schottenfelder Hof" at Westbahnstraße 27-29 was built in 1908 according to plans by August Belohlavek by the company Kupka & Orglmeister for the rubber goods manufacturer Josef Piwonka. The property consists of two interconnected double wings and two parallel courtyard wings that extend deep into the property. The "Schottenfelder Hof" impresses with its impressive entrance and the quiet, green inner courtyard. The property to be rented can be used for retail, a studio or as an office. The approximately 219 square metres are divided into two large rooms, a small adjoining room with a separate toilet and access to a small inner courtyard as well as a storage/technical room on the mezzanine floor. The street-side sales/work space offers seven display areas and a large glass door. The rear room has access to the stairwell and a WC. The room height is over 2.90 metres. Entrance is possible directly via Westbahnstraße or via the staircase. Furnishings Renovation measures or individual adaptations can be agreed with the landlord or will be carried out by the landlord. Terms and conditions Total rent: EUR 5,156.67 (incl. operating costs and 20 % VAT) Electricity and heating costs are not included. Deposit: 3 to 6 BMM (depending on creditworthiness) Commission: 3 BMM Rental period: unlimited Start of tenancy: immediately The tenant is responsible for the rental agreement. This property is offered to you for rent without obligation and subject to confirmation.The above details are based on information and documents provided by the owner and are without guarantee on our part.The general terms and conditions and the Ordinance for Real Estate Agents of the Federal Ministry of Trade, Commerce and Industry, Federal Law Gazette 297/1996 apply as the brokerage fee. In the event that a corresponding legal transaction is concluded in this regard, we will charge you a brokerage commission of 3 gross monthly rents plus statutory VAT. We would like to point out that there is a close family or economic relationship between the agent and the third party to be brokered. The agent acts as a dual broker. Learn more Downloads Exposé Location Westbahnstraße invites you to stroll and wander - many interesting shops, buildings and restaurants make this neighbourhood particularly charming. The popular Neubaugasse and the Mariahilfer Straße shopping mile are just a few minutes' walk away. The local amenities are therefore excellent. Specialist shops of all kinds, a variety of trendy restaurants, cultural events (Renaissance Theatre/Theatre der Jugend, Museumsquartier,...) - everything is right on your doorstep! The public transport connections are excellent. The following means of transport are in the immediate vicinity: + Westbahnhof with regional and national connections (Linz, Salzburg, Munich,...) + U3 Westbahnhof or Neubaugasse + U6 Burggasse/Stadthalle + Tram lines 49 and 5 + Bus lines 13A and 48A + Neubaugasse is also a new, important interchange point for the U2 and U3. Contact person Sandra Weichesmiller Property sales Enquire about a property +43 676 7093336 +43 1 3157280 vCard Energy certificate D HWB: 132.30 kWh/m²a D fGEE: 2.16 Show in Google Maps Enquiry We are pleased to receive your enquiry about "BUSINESS LOCAL/OFFICE in the WESTBAHNSTRASSE in the Schottenfelder Hof! Direct access from the street and large windows!". Salutation Salutation* "Mr" "Mrs" Neutral Not specified Title Title traced. First name Surname Callback service Telephone no. Period Period Fr 17.4., 8:30 AM – 10:30 AM Fr 17.4., 10:30 AM – 12:30 PM Fr 17.4., 12:30 PM – 2:30 PM Mo 20.4., 8:30 AM – 10:30 AM Mo 20.4., 10:30 AM – 12:30 PM Mo 20.4., 12:30 PM – 2:30 PM Mo 20.4., 2:30 PM – 4:30 PM Mo 20.4., 4:30 PM – 6:30 PM e-mail Message I agree that my data will be stored and processed for the purpose of processing the enquiry. Further information can be found in our privacy policy. * Bitte geben Sie in dieses Feld 999 ein Send