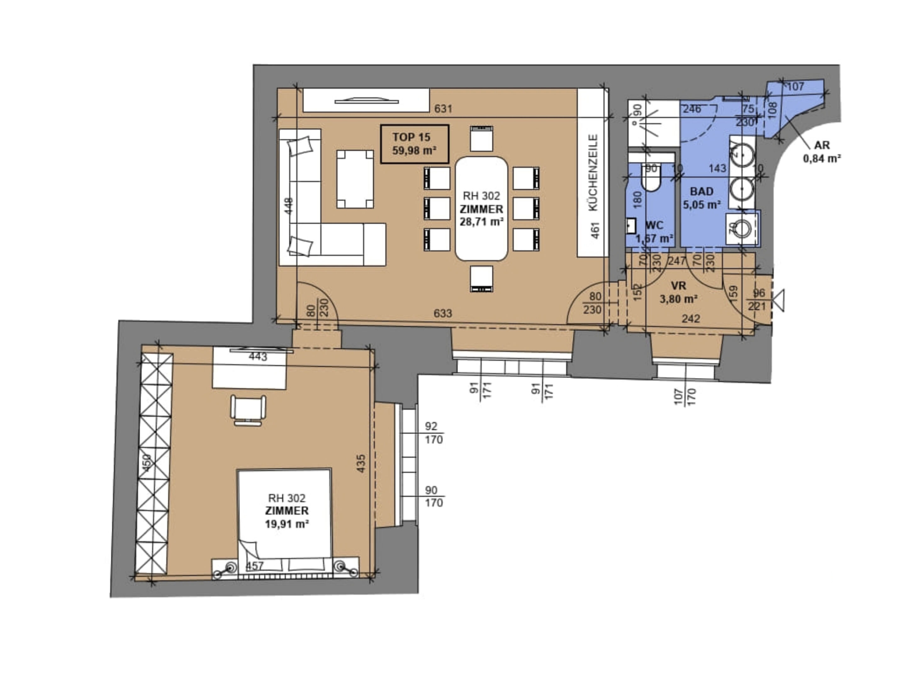
Back Back to the results Images Plans 1/13 1010 Vienna, Ballgasse READY FOR IMMEDIATE OCCUPANCY! Quiet courtyard location + stucco ceilings + historic Biedermeier house + tasteful furnishings! Living area 59.98 m² Rooms 2 Baths 1 Available from immediately Style Old building Total rent* € 1,999.00 Object ID: 29767 Key data Floor 2. Floor Living area 59.98 m² Rooms 2 Baths 1 WC 1 Style Old building Price Total rent* € 1,999.00 Rent € 1,681.61 Operating costs € 135.66 Value added tax € 181.73 Monthlytotal charge € 1,999.00 * Rent + service charges (incl. VAT), without heating costs Security deposit 5.997,00 € Overview of additional costs (PDF) Equipment Shower Fitted kitchen Kitchen/living room / open-plan kitchen Tiles Parquet flooring Floor heating Gas Fully furnished Property description The history of the house The listed Biedermeier property with its Josephine façade and charming Pawlatschengang in the inner courtyard is located in Ballgasse, a fine, quiet pedestrian zone in the heart of Vienna's city centre. Ballgasse 6 bears the name "Zum alten Blumenstock" and is a remarkable testimony to building and residential culture from the late Middle Ages to the late 18th century and the site of one of Vienna's most traditional inns. The house that stood before the present one was owned by the convent nuns "Zur Himmelspforte". After the convent was dissolved, it was rebuilt around 1784. In 1825, the owners were the Geymüller banking family and parts of the convent are still preserved in the basement. The façade will be renovated this year. Floor plan Top 15 The flat is located on the 2nd floor, has around 60 square metres and faces the courtyard. The room height is up to 3.20 metres. The successful room layout is organised as follows: Entrance hall Kitchen/living room with approx. 29 sqm Bedroom with approx. 20 sqm Bathroom with walk-in shower, double washbasin, washing machine Separate WC with wash hand basin Furnishings and fittings Herringbone parquet flooring wooden box windows stucco ceilings doors in old Viennese style modern sanitary facilities stylish lighting complete furnishing of all rooms fully equipped fitted kitchen gas heating Several residential units Several units are available for rent in this property. All are fully furnished and ready for immediate occupancy. We would be happy to send you an overview of all available flats. We look forward to presenting the properties to you during a viewing! Terms and conditions Total rent: EUR 1.999,- (incl. BK and 10 % VAT) The costs for electricity and gas are not included and are to be paid by the tenant. Deposit: EUR 5,5,997.00 Start of tenancy: possible immediately Rental period: limited to 5 years This property is offered for rent without obligation and subject to confirmation.The above details are based on information and documents provided by the owner and are subject to change without notice. We would like to point out that there is a close family or business relationship between the estate agent and the third party to be brokered. The estate agent declares that he is acting unilaterally only for the landlord - contrary to the customary business practice of the dual agent in the property industry. Learn more Downloads Exposé Location Ballgasse is located in the middle of Vienna's city centre and therefore offers everything your heart desires: countless shopping opportunities, sights, museums/theatres/opera houses, a diverse gastronomy scene as well as excellent transport connections and beautiful parks within walking distance! Below you will find a small excerpt of the offers in your new living environment. Public transport: - U1 and U3 Stephansplatz - Tram line 2 - Bus lines 1A, 2A and 3A Public car parks: - Weihburggasse (Hotel Marriott) - Stephansplatz - Parkring - Cobdengasse - Neuer Markt Green spaces: - Stadtpark - Burggarten - Volksgarten - Donaukanal In the immediate vicinity: - Kärntner Straße, Graben, Neuer Markt, Wollzeile, Rotenturmstraße - Stephansdom, Annakirche, Peterskirche - Ronacher, Mozarthaus, Staatsoper, Haus der Musik - and many more... Contact person Patrick Winkler Property sales Enquire about a property +43 660 8461085 +43 1 3157280 vCard Energy certificate C HWB: 80.90 kWh/m²a D fGEE: 1.76 Show in Google Maps Enquiry We are pleased to receive your enquiry about "READY FOR IMMEDIATE OCCUPANCY! Quiet courtyard location + stucco ceilings + historic Biedermeier house + tasteful furnishings!". Salutation Salutation* "Mr" "Mrs" Neutral Not specified Title Title traced. First name Surname Callback service Telephone no. Period Period Th 14.5., 2:30 PM – 4:30 PM Th 14.5., 4:30 PM – 6:30 PM Fr 15.5., 8:30 AM – 10:30 AM Fr 15.5., 10:30 AM – 12:30 PM Fr 15.5., 12:30 PM – 2:30 PM e-mail Message I agree that my data will be stored and processed for the purpose of processing the enquiry. Further information can be found in our privacy policy. * Bitte geben Sie in dieses Feld 999 ein Send