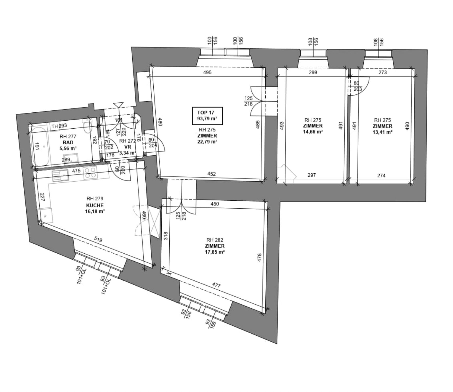
Back Back to the results Images Plans 1/17 1010 Vienna, Ballgasse Moving made easy! Modern 4-room flat on the 3rd lift floor! Living area 93.79 m² Rooms 4 Baths 1 Available from immediately Fixed term 5 years Style Old building Total rent* € 2,499.00 Object ID: 29971 Key data Floor 3. Floor Living area 93.79 m² Rooms 4 Baths 1 WC 1 Style Old building Condition Well kept Price Total rent* € 2,499.00 Rent € 1,997.43 Operating costs € 274.39 Value added tax € 227.18 Monthlytotal charge € 2,499.00 * Rent + service charges (incl. VAT), without heating costs Security deposit 7.497,00 € Overview of additional costs (PDF) Equipment Bathtub Fitted kitchen Kitchen/living room / open-plan kitchen Finished parquet Tiles Carpet Floor heating Gas Passenger lift Fully furnished Property description Fully furnished 4-room flat! Move in and feel good! The history of the house The listed Biedermeier property with its Josephine façade and charming Pawlatschengang in the inner courtyard is located in Ballgasse, a fine, quiet pedestrian zone in the heart of Vienna's city centre. Ballgasse 6 bears the name "Zum alten Blumenstock" and is a remarkable testimony to building and residential culture from the late Middle Ages to the late 18th century and the site of one of Vienna's most traditional inns. The house that stood before the present one was owned by the convent nuns "Zur Himmelspforte". After the convent was dissolved, it was rebuilt around 1784. In 1825, the owners were the Geymüller banking family and parts of the convent are still preserved in the basement. The façade is being renovated this year. Floor plan Top 17 The flat is located on the 3rd lift floor, has around 94 sqm and faces the courtyard and the street. The room height is approx. 2.77 metres. The successful room layout is organised as follows: entrance hall Cosy living room (approx. 15 sqm) with couch and TV Dining room (approx. 23 sqm) with designer seating ensemble Spacious kitchen area with approx. 16 sqm street-side bedroom with approx. 18 sqm bedroom facing the courtyard with approx. 13 sqm modern bathroom with bathtub and WC Furnishings and fittings stylish wooden box-type windows double doors tasteful lighting complete furnishing of all rooms fully equipped fitted kitchen gas heating Several residential units Several units are available for rent in this property. All are fully furnished and ready for immediate occupancy. We would be happy to send you an overview of all available flats. We look forward to presenting the properties to you during a viewing! Terms and conditions Total rent: EUR 2.499,- (incl. BK and 10 % VAT) The costs for electricity and gas are not included and are to be paid by the tenant. Deposit: EUR 7.497,- Start of tenancy: possible immediately Rental period: limited to 5 years This property is offered for rent without obligation and subject to confirmation.The above details are based on information and documents provided by the owner and are subject to change without notice. We would like to point out that there is a close family or business relationship between the estate agent and the third party to be brokered. The estate agent declares that he is acting unilaterally only for the landlord - contrary to the customary business practice of the dual agent in the property industry. Learn more Downloads Exposé Flat overview and rents Location Ballgasse is located in the middle of Vienna's city centre and therefore offers everything your heart desires: countless shopping opportunities, sights, museums/theatres/opera houses, a diverse gastronomy scene as well as excellent transport connections and beautiful parks within walking distance! Below you will find a small excerpt of the offers in your new living environment. Public transport: - U1 and U3 Stephansplatz - Tram line 2 - Bus lines 1A, 2A and 3A Public car parks: - Weihburggasse (Hotel Marriott) - Stephansplatz - Parkring - Cobdengasse - Neuer Markt Green spaces: - Stadtpark - Burggarten - Volksgarten - Donaukanal In the immediate vicinity: - Kärntner Straße, Graben, Neuer Markt, Wollzeile, Rotenturmstraße - Stephansdom, Annakirche, Peterskirche - Ronacher, Mozarthaus, Staatsoper, Haus der Musik - and many more... Contact person Patrick Winkler Property sales Enquire about a property +43 660 8461085 +43 1 3157280 vCard Energy certificate C HWB: 80.90 kWh/m²a D fGEE: 1.76 Show in Google Maps Enquiry We are pleased to receive your enquiry about "Moving made easy! Modern 4-room flat on the 3rd lift floor!". Salutation Salutation* "Mr" "Mrs" Neutral Not specified Title Title traced. First name Surname Callback service Telephone no. Period Period Tu 14.4., 8:30 AM – 10:30 AM Tu 14.4., 10:30 AM – 12:30 PM Tu 14.4., 12:30 PM – 2:30 PM Tu 14.4., 2:30 PM – 4:30 PM Tu 14.4., 4:30 PM – 6:30 PM We 15.4., 8:30 AM – 10:30 AM We 15.4., 10:30 AM – 12:30 PM We 15.4., 12:30 PM – 2:30 PM We 15.4., 2:30 PM – 4:30 PM We 15.4., 4:30 PM – 6:30 PM e-mail Message I agree that my data will be stored and processed for the purpose of processing the enquiry. Further information can be found in our privacy policy. * Bitte geben Sie in dieses Feld 999 ein Send Discover our diverse property portfolio 1100 Vienna, Troststraße 81 FIRST MOVING IN to modern NEW BUILDING with FREE SPACES! 2 Rooms 93.81 m² € 2,363.08